Thinking of building a pool? Start here.
Before we bring your dream backyard to life, there's one step that's absolutely critical: getting a survey for pool construction. While it may not be the most exciting part of the process, it's the foundation for a successful build — and skipping it can lead to major headaches.
At Limitless Custom Pools, we require every client to have a current survey before we start designing or digging. Here's why it matters and what you need to know.
What Is a Survey for Pool Construction?
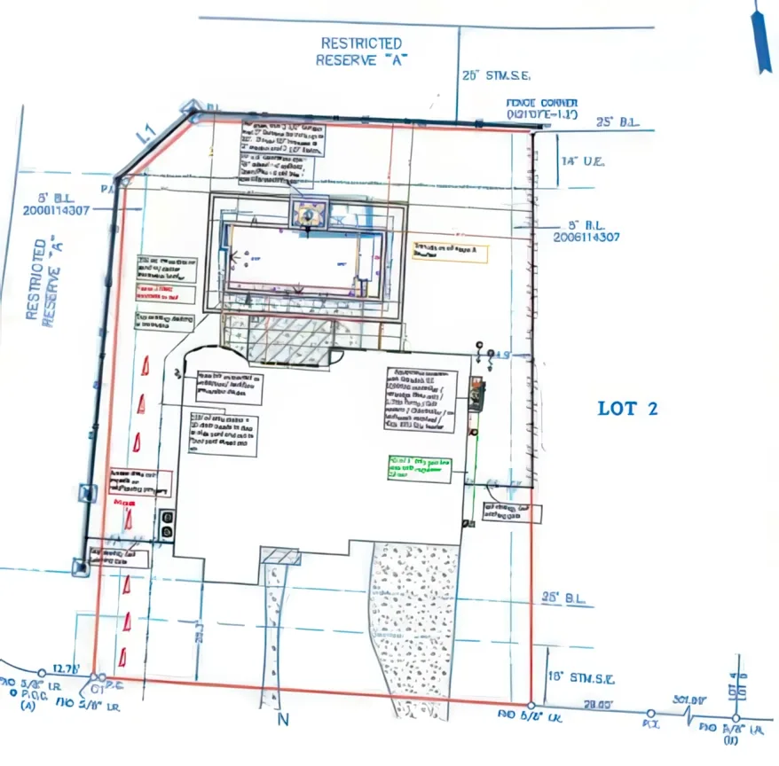
A survey for pool construction is a professionally prepared map of your property that shows:
- Exact property lines
- Location of your home and any structures
- Utility easements, drainage areas, and building setback lines
- Fence lines, trees, driveways, patios, and other key features
This document is created by a licensed land surveyor and becomes the blueprint for legal, safe, and accurate pool design.
Why You Need a Survey Before pool design or Permitting
Here's what a survey for pool construction protects you from:
1. Easement Violations
You can't build over utility easements, and if you do, the city or utility company can force you to tear it out — even after construction. A survey helps you avoid this costly mistake.
2. Permit Denials
Cities, counties, and HOAs won't approve a pool permit without a valid survey showing the proposed layout. It's a required step in virtually every jurisdiction in Texas.
3. Design Errors
You don't want to invest in a beautiful design, only to find out it won't fit your yard. A survey ensures your pool fits within legal boundaries and avoids existing features like trees, septic systems, or utility lines.
4. Property Line Disputes
A survey for pool construction confirms exactly where your lot ends — so your pool doesn't accidentally spill over into your neighbor's yard.
How Recent Does the Survey Need to Be?
Most cities require a survey no more than 2–3 years old. Some permit offices and HOAs may require it to be within the past 12 months, especially if changes have been made to your yard (e.g., fences, patios, landscaping, etc.).
If your survey is older or your yard has changed, it's best to order a new one.
What If I Don't Have a Survey?
If you don't already have a survey for pool construction, here's how to get one:
- Check your closing documents: If you bought your home recently, a survey might be included.
- Hire a licensed land surveyor: Costs typically range from $350 to $750, depending on lot size and location.
- Let us help: At Limitless, we can refer trusted local surveyors and even manage the process for you.
Final Word: No Survey, No Pool
A survey for pool construction might seem like a formality, but it's one of the most important parts of your project. It helps us design confidently, build legally, and ensure that your investment is protected from the start.
Ready to Build? Let's Start With Your Survey
At Limitless Custom Pools, we make the process easy. From survey to final inspection, we guide you every step of the way.
Contact us today to get started — and let's make sure your dream pool starts with the right foundation.



